| 房屋信息 | |
|---|---|
| 房產類型 | 公寓 |
| 房產編號 | 127233 |
| 房產售價 | 1,880萬日元 |
| 地址 | 奈良県生駒市元町2丁目 |
| 交通 | 近鉄奈良線「生駒」駅歩10分 |
| 建築年月 | 平成11年2月 |
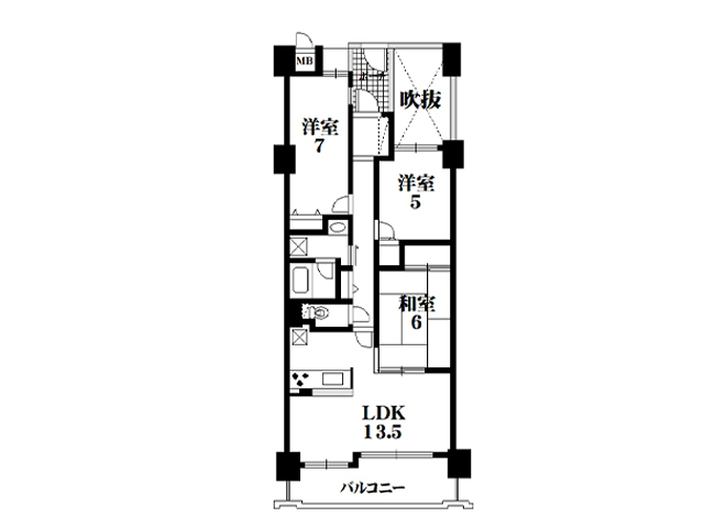
| 專有面積 | 67.55㎡ |
| 構造 | 鋼架混凝土造11層建 |
| 格局 | 3LDK |
| 管理組合 | 有 |
| 管理形態 | 全部委托 |
| 管理人狀況 | 白班 |
| 管理費 | 9,800日元 |
| 修繕公積金 | 9,860日元 |
| 現況 | 居住中 |
| 寵物 | 可 |
| 用途地域 | 第1種住居地域 |
| 都市計劃 | 宅地 |
| 私道負擔 | 無 |
| 國土法屆出 | 不要 |
| 權利 | 永久權 |
| 交易形態 | 中介 |
| 備註1 | 滝寺公園歩2分、セブンイレブン歩8分、近鉄百貨店・ベルテラスいこま・近商ストア歩12分 |
| 備註2 | いこま乳児保育所歩6分、生駒幼稚園歩16分、生駒小学校歩21分、緑ヶ丘中学校歩18分 |



