高石市千代田3丁目
| 房屋信息 | |
|---|---|
| 房产类型 | 新建一戶建 |
| 物件番号 | 123901 |
| 销售价格 | 1,578万日元 |
| 地址 | 高石市千代田3丁目 |
| 交通 | 南海本線「高石」歩9分|
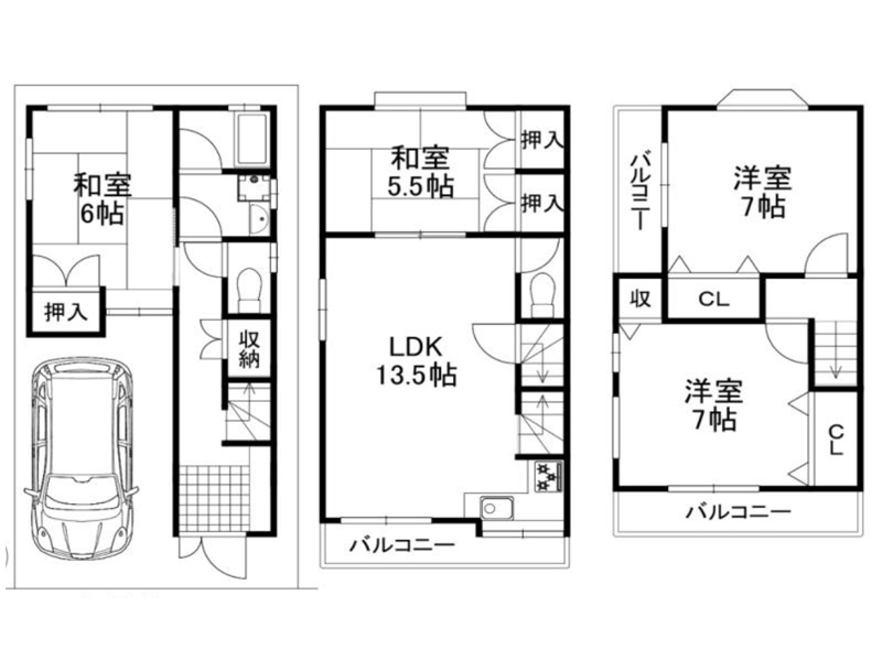
| 土地面积 | 54.09㎡ |
| 建筑面积 | 103.27㎡ |
| 构造 | 木・钢架造3階建 |
| 格局 | 4LDK |
| 用途地域 | 第2種住居地域 |
| 都市計画 | 市街化区域 |
| 地目 | 宅地 |
| 地勢 | 平坦 |
| 建筑率 | 60% |
| 容积率 | 180% |
| 国土法届出 | 不要 |
| 权利 | 永久权 |
| 交易形态 | 中介 |
| 备注1 | セブンイレブン歩5分、サンディ歩8分、コノミヤ・アプラたかいし歩9分 |
| 备注2 | 私道负担11.99㎡ |



