堺市堺区寺地町西2丁 2号棟
| 房屋信息 | |
|---|---|
| 房产类型 | 新建一户建 |
| 房产编号 | 127544 |
| 销售价格 | 4,748万日元 |
| 地址 | 堺市堺区寺地町西2丁 |
| 交通 | 阪堺線「寺地町」歩2分 阪堺線「宿院」歩6分 南海本線「堺」歩14分 |
| 土地面积 | 100.67㎡ |
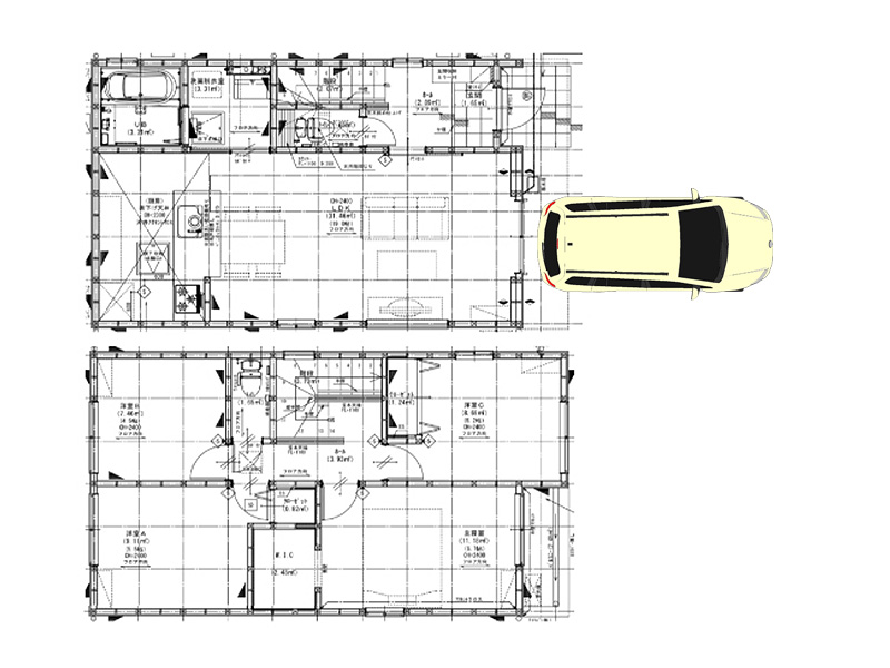
| 建筑面积 | 96.07㎡ |
| 构造 | 木造2层建 |
| 格局 | 4LDK |
| 用途地域 | 近邻商业地域 |
| 都市計画 | 市街化区域 |
| 地目 | 宅地 |
| 地勢 | 平坦 |
| 建筑率 | 80% |
| 容積率 | 300% |
| 国土法届出 | 不要 |
| 权利 | 永久权 |
| 交易形态 | 中介 |
| 备注1 | ローソン・サンプラザ歩2分、ファミリーマート歩3分、日之出屋歩6分 |
| 备注2 | 英彰こども園歩3分、ふくろうの森保育園歩4分、英彰小学校歩5分、大浜中学校歩9分 |
| 备注3 | 建筑确认番号:第KS125-0420-56006号 |



