陽当たり・眺望良好な「3LDK」住戸

近鉄奈良線「生駒」駅まで徒歩10分

メゾンドール・クラヴィエ生駒

外観

近鉄奈良線「生駒」駅まで徒歩10分。バルコニー付き、陽当たり・眺望良好な「3LDK」住戸です。ペット飼育可。

メゾンドール・クラヴィエ生駒

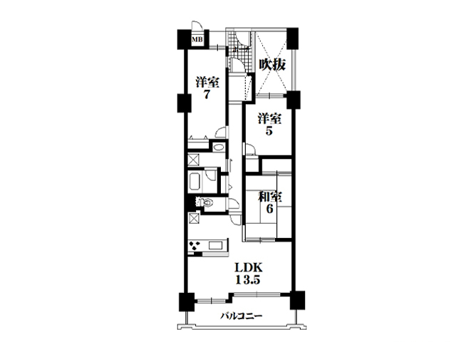
間取図

対面式キッチンが設けられており、調理中でもご家族の様子を見守りやすく、会話を交わしながら家事を進められます。ご家族のくつろぎスペースやお子様の遊び場としても使える和室付きです。

バルコニー南向き日当たり・眺望良好。床暖房・浴室乾燥機付き。ペット飼育可。

メゾンドール・クラヴィエ生駒

エントランス

タイル貼りのエントランスホールで、落ち着いたトーンの共用空間が整えられています。エレベーターが配置されており、スムーズな動線が確保されています。

メゾンドール・クラヴィエ生駒

駐車場

屋根付きの駐車スペース。雨の日でも荷物の積み下ろしや小さなお子さまの乗り降りがしやすく、車利用の多いご家庭にも便利です。

メゾンドール・クラヴィエ生駒

眺望

視界が広がり、周辺の街並みを見渡せる穏やかな眺望です。緑も多く、ゆったりとした時間を過ごせそうです。

周辺環境

メゾンドール・クラヴィエ生駒

近鉄奈良線「生駒」

大阪難波・神戸三ノ宮方面・奈良方面を結ぶ 近鉄奈良線と、 近鉄生駒線・ けいはんな線への乗り換えがスムーズなターミナル駅です。

メゾンドール・クラヴィエ生駒

滝寺公園

緑が豊かで四季折々の自然の表情を身近に感じられる憩いの場です。散歩や軽い休憩にも使いやすく、気軽に過ごせる落ち着いたスポットです。

メゾンドール・クラヴィエ生駒

セブンイレブン

24時間営業のコンビニエンスストア。公共料金や各種料金の支払いにも対応されており、日常の手続きを一度に完了しやすい利便性があります。

メゾンドール・クラヴィエ生駒

近鉄百貨店

全館の営業時間は10:00~20:00、レストラン街は11:00~21:30。日常の買い物から贈答品の購入まで幅広い用途で利用できます。

メゾンドール・クラヴィエ生駒

近商ストア

営業時間は9:00~21:45。原材料や産地にこだわったオリジナルブランド商品も展開されており、日々の食卓づくりに役立つ品揃えが特徴です。

メゾンドール・クラヴィエ生駒

ベルテラスいこま

近鉄「生駒」駅北口から直結した複合商業施設です。1階に近商ストア新生駒店、上層階には飲食店・医療機関・公共施設などが配置されています。

物件概要

物件種別 マンション
物件番号 127233
販売価格 1,880万円
所在地 奈良県生駒市元町2丁目
交通 近鉄奈良線「生駒」駅徒歩10分
築年月 平成11年2月
専有面積 67.55㎡
構造 RC造11階建
間取 3LDK
管理組合
管理形態 全部委託
管理人状況 日勤
管理費 9,800円
修繕積立金 9,860円
現況 居住中
ペット
用途地域 第1種住居地域
都市計画 市街化区域
地目 宅地
私道負担
国土法届出 不要
権利 所有権
取引態様 仲介
備考1 滝寺公園徒歩2分、セブンイレブン徒歩8分、近鉄百貨店・ベルテラスいこま・近商ストア徒歩12分
備考2 いこま乳児保育所徒歩6分、生駒幼稚園徒歩16分、生駒小学校徒歩21分、緑ヶ丘中学校徒歩18分

お問い合わせ

物件のお問合せを承ります。ご希望の方は下のフォームに入力して送信してください。

※個人情報の取り扱いについてはこちらをご覧下さい。











    上記内容を確認したらチェックを入れてください。
    電話でお問い合わせ