大阪市東住吉区山坂5丁目

外観

大阪市東住吉区山坂5丁目

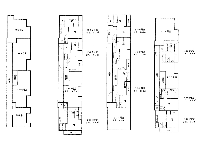
間取図

1棟マンション・オーナーチェンジ物件・満室賃貸中。表面利回り9.11%。駅徒歩5分・スーパー徒歩6分、生活便利。

周辺環境

大阪市東住吉区山坂5丁目

JR阪和線「鶴ヶ丘」

大阪市東住吉区山坂5丁目

ライフ

物件概要

物件種別 収益物件,収益物件
物件番号 128143
販売価格 11,100万円
所在地 大阪市東住吉区山坂5丁目
交通 JR阪和線「鶴ヶ丘」徒歩5分
地下鉄御堂筋線「西田辺」徒歩10分
土地面積 171.90㎡
建物面積 409.28㎡
構造 鉄骨造4階建
間取 16室
用途地域 第2種中高層住居専用地域
都市計画 市街化区域
地目 宅地
建ぺい率 60%
容積率 200%
国土法届出 不要
権利 所有権
取引態様 仲介
備考1 セブンイレブン徒歩5分、ライフ徒歩6分、サンディ徒歩9分
備考2 月額842,660円・年額10,111,920円で、賃貸中

お問い合わせ

物件のお問合せを承ります。ご希望の方は下のフォームに入力して送信してください。

※個人情報の取り扱いについてはこちらをご覧下さい。











    上記内容を確認したらチェックを入れてください。
    電話でお問い合わせ