神戸市西区春日台2丁目1期 1号棟

外観

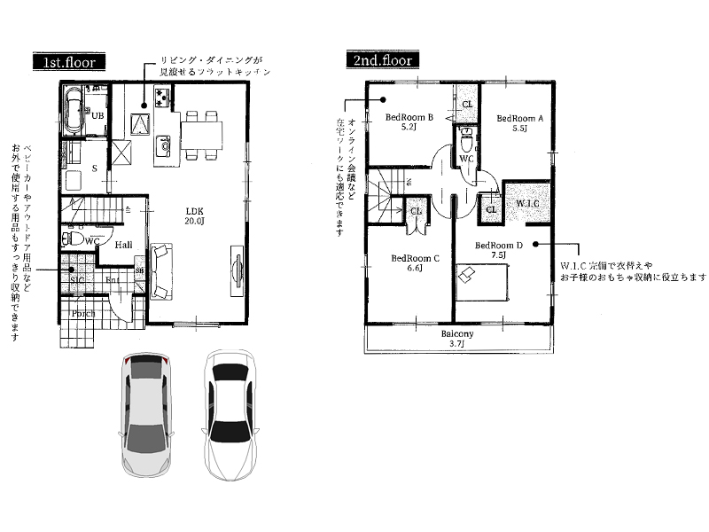
神戸市西区春日台2丁目1期 1号棟

間取図

2025年6月完成・オープンハウス開催中。南西向き・日当良好な土地42坪。閑静な住宅街。スーパー徒歩圏内、買物便利。

神戸市西区春日台2丁目1期 1号棟

リビング・ダイニング

神戸市西区春日台2丁目1期 1号棟

キッチン

神戸市西区春日台2丁目1期 1号棟

洗面化粧台

神戸市西区春日台2丁目1期 1号棟

バスルーム

神戸市西区春日台2丁目1期 1号棟

トイレ

神戸市西区春日台2丁目1期 1号棟

洋室

神戸市西区春日台2丁目1期 1号棟

ウォークインクローゼット

神戸市西区春日台2丁目1期 1号棟

玄関収納

神戸市西区春日台2丁目1期 1号棟

バルコニー

周辺環境

神戸市西区春日台2丁目1期 1号棟

地下鉄西神・山手線「西神中央」

神戸市西区春日台2丁目1期 1号棟

ファミリーマート

神戸市西区春日台2丁目1期 1号棟

コープ・かすがプラザ

物件概要

物件種別 新築一戸建て
物件番号 128472
販売価格 4,398万円
所在地 神戸市西区春日台2丁目
交通 地下鉄西神・山手線「西神中央」徒歩27分
土地面積 139.72㎡
建物面積 102.68㎡
構造 木造2階建
間取 4LDK
用途地域 第1種低層住居専用地域
都市計画 市街化区域
地目 宅地
建ぺい率 60%
容積率 100%
国土法届出 不要
権利 所有権
取引態様 仲介
備考1 春日台公園徒歩4分、山本医院徒歩10分、ファミリーマート・ココカラファイン徒歩11分、コープ・かすがプラザ徒歩12分
備考2 美賀多保育園徒歩12分、春日台幼稚園徒歩11分、春日台小学校徒歩5分、平野中学校徒歩12分
備考3 建築確認番号:第KS124-0410-64713号

お問い合わせ

物件のお問合せを承ります。ご希望の方は下のフォームに入力して送信してください。

※個人情報の取り扱いについてはこちらをご覧下さい。











    上記内容を確認したらチェックを入れてください。
    電話でお問い合わせ