大阪市東住吉区住道矢田1丁目

外観

大阪市東住吉区住道矢田1丁目

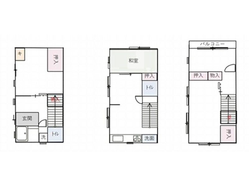
間取図

2026年3月リフォーム済み・オープンハウス開催中。東側通路につき日当たり良好。駅・スーパー・教育施設徒歩圏内で生活便利。

大阪市東住吉区住道矢田1丁目

LDK

大阪市東住吉区住道矢田1丁目

キッチン

大阪市東住吉区住道矢田1丁目

洋室

大阪市東住吉区住道矢田1丁目

洗面化粧台

大阪市東住吉区住道矢田1丁目

バスルーム

大阪市東住吉区住道矢田1丁目

トイレ

大阪市東住吉区住道矢田1丁目

バルコニー

周辺環境

大阪市東住吉区住道矢田1丁目

近鉄南大阪線「矢田」駅

大阪市東住吉区住道矢田1丁目

矢田東小学校

大阪市東住吉区住道矢田1丁目

食品館アプロプ

物件概要

物件種別 中古一戸建て
物件番号 131429
販売価格 2,180万円
所在地 大阪市東住吉区住道矢田1丁目
交通 近鉄南大阪線「矢田」駅徒歩10分
土地面積 45.12㎡
建物面積 103.14㎡
構造 木造3階建
間取 4LDK
用途地域 近隣商業地域
都市計画 市街化区域
地目 宅地
建ぺい率 80%
容積率 300%
国土法届出 不要
権利 所有権
取引態様 仲介
備考1 ヤナイ保健薬局徒歩2分、ローソンストア100・クスリのアオキ徒歩3分、食品館アプロプ徒歩8分
備考2 天宗東住吉園徒歩5分、矢田東小学校徒歩3分、矢田中学校徒歩6分

お問い合わせ

物件のお問合せを承ります。ご希望の方は下のフォームに入力して送信してください。

※個人情報の取り扱いについてはこちらをご覧下さい。











    上記内容を確認したらチェックを入れてください。
    電話でお問い合わせ